Embarcação de 10 metros Será Entregue na Localidade Barra do Longá

Publicado por Gildazio em 22 maio 2020

     Nas próximas semanas a localidade Barra do Longá deverá receber o seu tão sonhado bote, a embarcação que mais parecia um sonho inalcançável, visto que os moradores daquela comunidade já não acreditavam mais em tantas promessas, depois de tamanha espera finalmente um dos maiores desejos daquela população está muito próximo de se tornar realidade e o transporte de passageiros e veículos entre Barra do Longá e os diversos povoados que ficam do outro lado do rio passará a ser um serviço público. 

     Por entender que esse anseio popular representava uma das principais aspirações daquela localidade, o Prefeito Júnior Percy não mediu esforços para atender a essa demanda, foram várias tentativas de realização de licitação para a construção da embarcação, infelizmente nenhuma empresa se apresentou para concorrer e habilitar-se na confecção do barco e isso emperrou bastante a início dos serviços. Determinado, o gestor municipal buscou outras alternativas legais para finalmente conseguir iniciar a construção do barco.

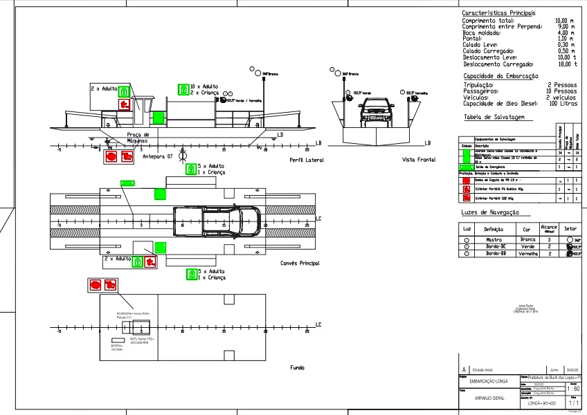
     Na verdade o que poucos sabem é que a embarcação que está sendo construída, e que encontra-se em fase de conclusão, não se trata de um pequeno bote que alguns imaginavam mais sim de um barco de grande porte que chega a 10 metros de comprimento e tem capacidade de carga muito superior aos que costumamos ver na região. O barco deverá ter dois tripulantes e poderá transportar até dois carros, além de dez passageiros em cada traslado. 

     “Fico imensamente feliz em poder realizar algo tão grandioso para meu município, foi necessário ter muita determinação, foram muitos percalços que impediam a concretização desse sonho tão antigo, minha persistência residia em construir e entregar o barco para o povo que tanto precisa desse serviço, considero que essa realização figura entre uma das mais importantes de nosso governo, disse Júnior Percy“.

Deixe uma resposta

O seu endereço de e-mail não será publicado. Campos obrigatórios são marcados com *

Loading Facebook Comments ...



Vídeos

Colunistas

Gildazio

Gildazio

3785
Nayana Amorim

Nayana Amorim

Formação: Web Designer Gráfic...e Técnico em Serviços Públicos. Email:nayanaags@hotmail.com
210
Erasmo Marcio Falcão

Erasmo Marcio Falcão

Artes Visuais, Inglês, Poesia, Música, Xadrez, Arte Rupestre. Mais informações: http://erasmudoporto.blogspot.com.br/
147
Ver Todos